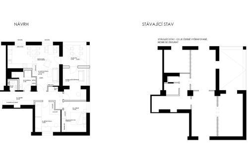
Před a po
Konečným výstupem naší práce je zrealizovaný interiér nebo stavba. K tomuto cíli vede ale hodně dlouhá cesta, někdy trvá i několik let, u interiérů běžně několik měsíců. Cestu jsme pro Vás zkrátili a vytvořili ukázku fotografií interiéru v moment, kdy jsme do něj poprvé vstoupili a v moment, kdy jsme ho opouštěli.
